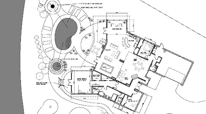
Pecaro House